耐火极限
通风管道耐火试验方法GB/T17428-2009
检验项目 | 技术指标 | 价格 | ||
耐火性能 | 管道A | 耐火完整性 | 炉外管道段发生以下任一限定情况均认为试件丧失完整性: 1.棉垫被点燃; 2.Φ6mm的缝隙探棒穿过试件进入炉内,并沿裂缝方向移动150mm的长度;Φ25mm的缝隙探棒穿过试件进入炉内; 3.背火面出现火焰并持续时间超过10s; 4.管道A内不能保持(300±15)Pa的压差时。 | 14000/h +0.5h +2000 |
耐火隔热性 | 管道发生以下任一情况均认为丧失隔热性: 1.平均温度温升超过初始平均温度140℃; 2.任一点位置的温度温升超过初始温度(包括移动热电偶)180℃(初始温度是试验开始时背火面的初始平均温度)。 | |||
管道B | 耐火完整性 | 炉外管道发生以下任一情况均认为丧失完整性: 1.棉垫被点燃; 2.Φ6mm的缝隙探棒穿过试件进入炉内,并沿裂缝方向移动150mm的长度;Φ25mm的缝隙探棒穿过试件进入炉内; 3.背火面出现火焰并持续时间超过10s。 | ||
耐火隔热性 | 管道发生以下任一情况均认为丧失隔热性: 1.平均温度温升超过初始平均温度140℃; 2.任一点位置的温度温升超过初始温度(包括移动热电偶)180℃(初始温度是试验开始时背火面的初始平均温度)。 | |||
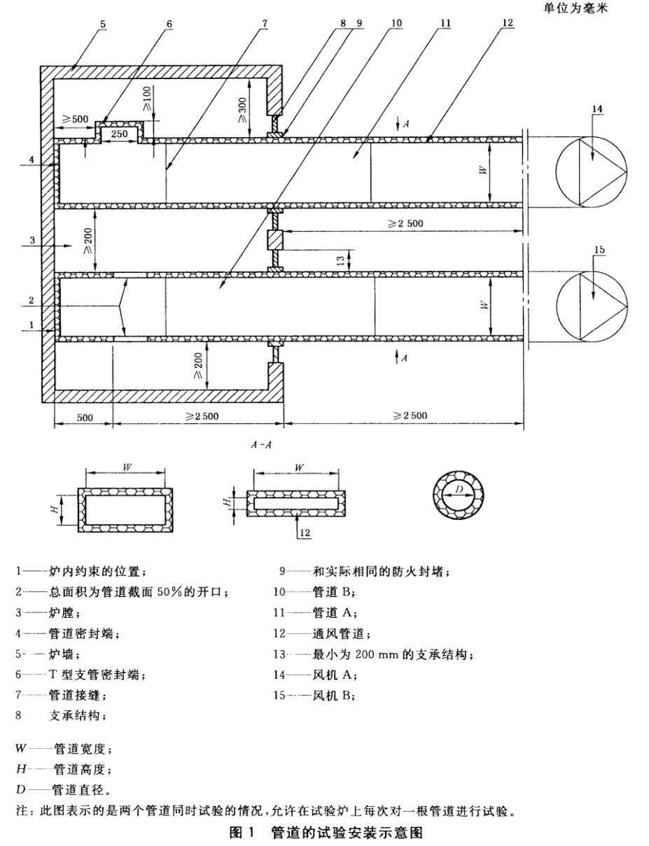
(一)通风管道耐火性能试验样品要求:
1.应使用下表给出的标准尺寸的管道进行试验,除非实际使用的截面尺寸小于此尺寸。
试件的截面尺寸
管道 | 矩形 | 圆形 | |
宽度/mm | 高度/mm | 直径/mm | |
A | 1000±10 | 500±10 | 800±10 |
B | 1000±10 | 250±10 | 630±10 |
2.管道A和管道B各需一个试件进行试验。
3.管道A的结构
管道A应包括一个T型支管,其截面为250mm×250mm,长度不小于100mm。应按图1进行安装。包括支管在内的整个试件应按与实际工程一致的方法进行吊挂或固定。
4.管道B上的开口
在管道B上留有两个开口,分别位于炉内管道段的两个侧面上。开口距炉墙的距离为(500±25)mmm。见图1。
管道开口截面的宽高比应与管道截面的宽高比相同,并且整个开口的面积应为管道截面面积的(50±10)%。即每个开口的面积应为管道截面面积的(25士5)%。
5.管道的接缝
试件在炉内和炉外至少应包含一个典型接缝,见图1。
不论在炉内还是在炉外,当管道由多层材料复合而成时,每层材料至少要有一个接缝。
